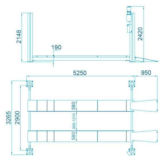
Подъемник четырехстоечный Velyen платформы гладкие, г/п 5 т. 4ED0600F
- — Оповещение по SMS
- — Возврат и обмен
- — Различные способы оплаты
- — Лучшая цена
Подъемник 4-х стоечный платформы гладкие Velyen 4ED0600F, г/п 5000 кг.
Четырехстоечный подъемник для проведения общеслесарных работ и процедуры регулировки сход-развала (РУУК). В случае необходимости, подъемник легко переоборудовать для процедуры регулировки сход-развала (РУУК) за счет монтажа комплекта накладок на платформы, предназначенных под сход-развал.
Особенности:
- Реальная г/п 5500 кг.
- Инновационный дизайн колонн без продольных сварочных швов
- Система блокировки платформ управляется автоматически при помощи электромагнитов
- Автоматическое снятие с замков безопасности нажатием кнопки "ВНИЗ"
- Платформы гладкие легко переоборудуются под сход-развал
- Система безопасности, предотвращающая соприкосновение с препятствиями, обрыв или ослабление тросов
- Гидравлический цилиндр с контрольным клапаном скорости опускания
- Клапан безопасности от превышения давления в гидросистеме
- Электромотор оборудован термодатчиком, предотвращающим перегрев
- Низковольтная система управления 24 В.
- Концевой выключатель максимального выхода штока гидроцилиндра для увеличения долговечности цилиндра
- Применяемая сталь IS 355
- Гидростанция может быть установлена на задней левой или передней правой колоннах
.
Отзывы не найдены
