Подъемник ножничный короткий, заглубляемый, г/п 3,2 т. KraftWell KRW3.2U/220
- — Оповещение по SMS
- — Возврат и обмен
- — Различные способы оплаты
- — Лучшая цена
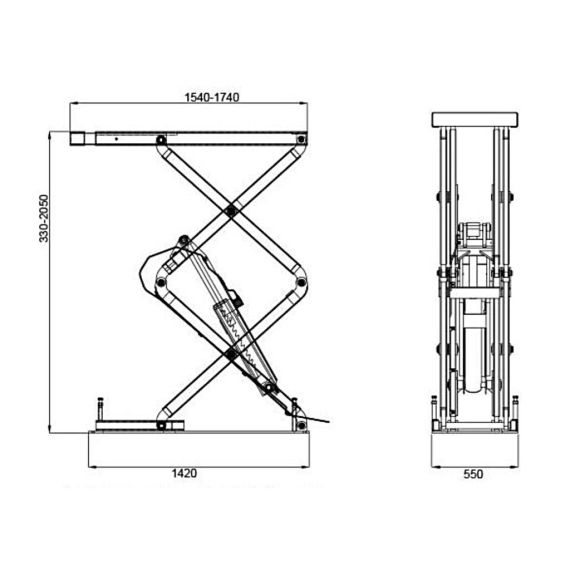
Гидравлический ножничный подъемник KraftWell KRW3.2U/220 с короткими платформами грузоподъемностью 3,2 тонны., заглубляемый, предназначен для обслуживания легковых автомобилей, внедорожников и легкого коммерческого транспорта.
- Длина платформ регулируется от 1540 до 1740 мм.
- Два гидравлических цилиндра с гидравлической схемой "master-slave" обеспечивают точную синхронизацию платформ.
- Фиксация платформ в поднятом состоянии осуществляется механическими гребенками с пневмоприводом освобождения из зацепления.
- Установка вровень с полом позволяет обслуживать автомобили с низким клиренсом, а максимальная высота подъема 2050 мм. обеспечивает максимальное удобство при работе.
- Конструкция подъемника изготовлена из высококачественных материалов и окрашена порошковой краской.
- Проведенные заводские испытания на статический тест 150% и динамический тест 125% грузоподъемности подтверждают заявленную грузоподъемность и надежность конструкции.
ВНИМАНИЕ! Для установки подъемника требуется изготовление приямка в соответствии с фундаментным заданием.
Особенности ножничного подъемника KRW3.2U/220:
- Грузоподъемность 3200 кг.
- Установка вровень с полом
- Длина платформ регулируется от 1540 до 1740 мм. за счет выдвижных платформ
- Максимальная высота подъема 2050 мм.
- Механическая фиксация в поднятом состоянии
- Два надежных гидравлических цилиндра
- Гидравлическая система синхронизации платформ
- Автоматическая система контроля опускания
- Защита ног механика с аудио сигналом
- Порошковая окраска
- Устройство ручного спуска в случае отключения электроэнергии
.
Отзывы не найдены
